Skip To Content

5091 Macarthur Blvd

Oakland, CA 94619
  • $3,500,000
  • STATUS: Active
  • ON SITE: 118 Days
  • ID#: ML82010970
UPDATED: 27 min ago
$3,500,000
  • 0
    BEDS
  • 0.64
    ACRES
  • 0
    BATHS
  • 0
    1/2 BATHS
Neighborhood:
Type:
Vacant Land / Lots
County:

School Ratings & Info

Listed by Mishelle Westendorf of Ocean Element Real Estate: 559-681-5477.

Description

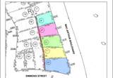
Presenting a rare opportunity to acquire FIVE contiguous vacant lots in a prime Oakland location, just minutes from Northeastern University's Oakland campus. These parcels are ideal for developers seeking to build high-demand housing such as apartments, student housing, or townhomes. Included with the sale are professionally designed architectural drawings, providing a head start toward permitting and construction. The lots are situated in a vibrant, walkable neighborhood with excellent access to great public schools, public transit, major commuter routes, and retail amenities.

Monthly Payment Calculator



© 2025 MLSListings Inc. Based on information from MLSListings MLS as of 2025-11-11T00:20:26.55. Data is updated hourly. All data, including all measurements and calculations of area, is obtained from various sources and has not been, and will not be, verified by broker or MLS. All information should be independently reviewed and verified for accuracy. Properties may or may not be listed by the office/agent presenting the information. DX information is provided exclusively for consumers' personal, non-commercial use and may not be used for any purpose other than to identify prospective properties consumers may be interested in purchasing. Information is deemed reliable but is not guaranteed accurate by the MLS or Olga Golovko | Keller Williams Realty-Silicon Valley.

Licensed in the State of California.
Website powered by BoomTown.
www.golovkohomes.com/homes/165917868
Print Image

5091 Macarthur Blvd Oakland, CA 94619

  • Price: $3,500,000
  • Status: Active
  • On Site: 118 Days
  • Updated: 27 min ago
  • ID#: ML82010970
0
Beds
0
Baths
0
½ Baths
0.64
Acres
Neighborhood:
Oakland Zip Code 94619
County:
Alameda
Area:
Oakland Zip Code 94619
Property Description
Presenting a rare opportunity to acquire FIVE contiguous vacant lots in a prime Oakland location, just minutes from Northeastern University's Oakland campus. These parcels are ideal for developers seeking to build high-demand housing such as apartments, student housing, or townhomes. Included with the sale are professionally designed architectural drawings, providing a head start toward permitting and construction. The lots are situated in a vibrant, walkable neighborhood with excellent access to great public schools, public transit, major commuter routes, and retail amenities.
Exterior Features

Fencing None Lot Description Other

Property Features

Additional Listing Info Not Applicable City Name OAKLAND Development Status Design Review RequiredDRE Approved - Call LASite PlanOther Hoa YN No Horse Property YN No Lot Size Area Maximum 27720.00 Lot Size Area Min 27720.00 Present Use Other Property Sub Type Residential Development Land Sewer Septic Other Utilities Other Water Other Zoning R1R3

Listed by Mishelle Westendorf of Ocean Element Real Estate: 559-681-5477.



© 2025 MLSListings Inc. Based on information from MLSListings MLS as of 2025-11-11T00:20:26.55. Data is updated hourly. All data, including all measurements and calculations of area, is obtained from various sources and has not been, and will not be, verified by broker or MLS. All information should be independently reviewed and verified for accuracy. Properties may or may not be listed by the office/agent presenting the information. DX information is provided exclusively for consumers' personal, non-commercial use and may not be used for any purpose other than to identify prospective properties consumers may be interested in purchasing. Information is deemed reliable but is not guaranteed accurate by the MLS or Olga Golovko | Keller Williams Realty-Silicon Valley.

Licensed in the State of California.
Website powered by BoomTown.
 
https://bt-photos.global.ssl.fastly.net/siliconv/1280_boomver_1_82010970-2.jpg https://bt-photos.global.ssl.fastly.net/siliconv/1280_boomver_1_82010970-2.jpg https://bt-photos.global.ssl.fastly.net/siliconv/1280_boomver_1_82010970-2.jpg
Logo
Olga Golovko | Keller Williams Realty-Silicon Valley
2110 S Bascom Ave #101
Campbell CA, 95008

Listed by Mishelle Westendorf of Ocean Element Real Estate: 559-681-5477.